中古戸建
湖南市下田 中古戸建 1,500万円
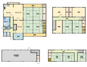
間取り図

間取り図
| 所在地 | 滋賀県湖南市下田(店舗部分未登記) | ||
|---|---|---|---|
| 価格 | 1,500万円 | 月々支払例 | 40,960円 |
| 間取り | 8SDK | ||
| 学校区 | 下田小学校 日枝中学校 | ||
| 築年月 階数 |
1987年12月 2階建て | ||

1,500万円

40,960円

54,613円
※全額借入、35年返済、金利、金利0.8%の場合
| 物件種別 | 中古戸建 | ||
|---|---|---|---|
| 物件No. | 10915 | ||
| 所在地 | 滋賀県湖南市下田(店舗部分未登記) | ||
| 小学校区 | 下田小学校 | 中学校区 | 日枝中学校 |
| 土地面積 | 396.69m²(約119.99坪) | 建物面積 | 207.83m²(約62.86坪) |
|---|---|---|---|
| 構造 | 木造 | 階数 | 2階建て |
| 間取り | 8SDK | 築年月 | 1987年12月 |
| 駐車場 | 有 | 水道 | 公営 |
| ガス | プロパン | 排水 | 下水 |
| 都市計画 | 市街化区域 | 用途地域 | 第一種住居 |
|---|---|---|---|
| 地目 | 宅地 | 土地権利 | 所有権 |
| 私道負担 | 地勢 | 平坦 | |
| 建ぺい率 | 60% | 容積率 | 200% |
| 現況 | 居住中 | 引渡時期 | 相談 |
| 引渡可能年月 | |||
| 備考 | 店舗部分未登記 売主の契約不適合責任免責 現況有姿による取引 間取図と現況が異なる場合は現況を優先します。 付属建物有り:物置(軽量鉄骨造2階建) |
||
| 交通 | JR草津線 三雲駅 バス乗車26分 バス停:下田北 停歩3分 |
||
|---|---|---|---|
| 接道状況 | 西側 | ||
| 取引態様 | 仲介 | 取引条件の有効期限 | |
| 情報登録日 | 2025年11月20日 | 次回更新日 | 2025年12月04日 |

中古戸建
湖南市サイドタウン 中古戸建 1,480万円
間取り:
建物面積:-
土地面積:-
建物面積:-
土地面積:-
価格
万円
1,480
頭金/ボーナス支払
円
0
月々返済
円
40,414

中古戸建
湖南市菩提寺西 中古戸建 1,599万円
間取り:
建物面積:82.94m²
土地面積:235.30m²
建物面積:82.94m²
土地面積:235.30m²
価格
万円
1,599
頭金/ボーナス支払
円
0
月々返済
円
43,663

中古戸建
湖南市中央 中古戸建 1,580万円
間取り:
建物面積:138.16m²
土地面積:208.62m²
建物面積:138.16m²
土地面積:208.62m²
価格
万円
1,580
頭金/ボーナス支払
円
0
月々返済
円
43,144

中古戸建
湖南市正福寺 中古戸建 1,520万円
間取り:
建物面積:223.26m²
土地面積:282.98m²
建物面積:223.26m²
土地面積:282.98m²
価格
万円
1,520
頭金/ボーナス支払
円
0
月々返済
円
41,506
-
大津市物件一覧(653件)
中古戸建…447件
中古マンション…206件
-
草津市物件一覧(82件)
中古戸建…48件
中古マンション…34件
-
栗東市物件一覧(32件)
中古戸建…23件
中古マンション…9件
-
守山市物件一覧(56件)
中古戸建…31件
中古マンション…25件
-
野洲市物件一覧(30件)
中古戸建…25件
中古マンション…5件
-
湖南市物件一覧(39件)
中古戸建…39件
中古マンション…0件
-
近江八幡市物件一覧(0件)
中古戸建…0件
中古マンション…0件
-
北区物件一覧(0件)
中古戸建…0件
中古マンション…0件
-
上京区物件一覧(0件)
中古戸建…0件
中古マンション…0件
-
左京区物件一覧(0件)
中古戸建…0件
中古マンション…0件
-
中京区物件一覧(0件)
中古戸建…0件
中古マンション…0件
-
東山区物件一覧(0件)
中古戸建…0件
中古マンション…0件
-
山科区物件一覧(0件)
中古戸建…0件
中古マンション…0件
-
下京区物件一覧(0件)
中古戸建…0件
中古マンション…0件
-
南区物件一覧(94件)
中古戸建…18件
中古マンション…76件
-
右京区物件一覧(423件)
中古戸建…258件
中古マンション…165件
-
西京区物件一覧(258件)
中古戸建…184件
中古マンション…74件
-
伏見区物件一覧(83件)
中古戸建…60件
中古マンション…23件
-
向日市物件一覧(84件)
中古戸建…45件
中古マンション…39件
-
長岡京市物件一覧(184件)
中古戸建…110件
中古マンション…74件
-
亀岡市物件一覧(0件)
中古戸建…0件
中古マンション…0件













